SKU: 112HZ_10123HZ
€71,50 IVA inclusa
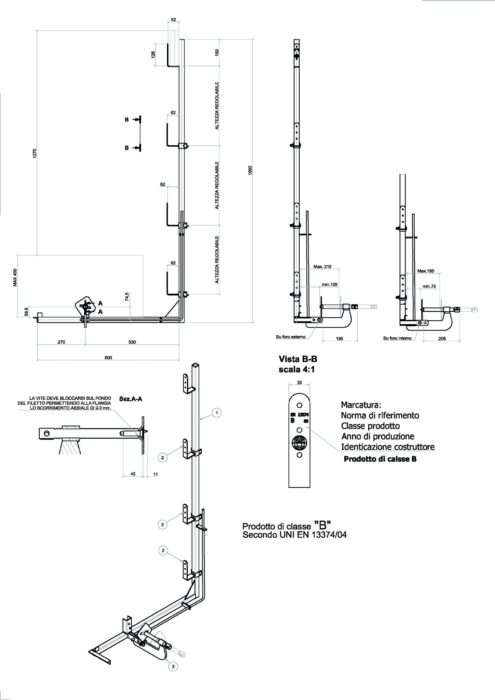
Il Parapetto provvisorio per tetti in legno 112HZ frontale 90° è una barriera di sicurezza temporanea progettata per lavori su coperture in legno: ideale per tetti inclinati con travi in legno, garantisce protezione affidabile contro cadute durante montaggi, riparazioni o manutenzioni.
Caratteristiche tecniche
Classe di protezione: Classe B secondo la norma UNI EN 13374/04, certificato da ISPESL – INAIL.
Morsetto regolabile: apertura compresa tra 80 e 210 mm, per adattarsi a travi di diverse dimensioni.
Materiali: struttura in acciaio zincato, resistente a corrosione e usura — adatta all’ambiente di cantiere.
Peso: circa 10 kg, per garantire stabilità senza risultare eccessivo durante il montaggio.
Il Parapetto Provvisorio per Legno 112HZ Frontale 90° è una soluzione progettata per garantire la sicurezza durante i lavori su coperture con travi in legno, offrendo una protezione efficace contro le cadute dall’alto. Questo sistema si installa frontalmente sulle travi, formando un angolo di 90°, ed è ideale per coperture con pendenze non superiori a 30°.
Il Parapetto 112HZ Frontale 90° offre una protezione efficace contro le cadute durante i lavori su tetti con travi in legno, migliorando la sicurezza dei lavoratori. La sua installazione intuitiva e la compatibilità con diverse pendenze consentono un montaggio rapido e semplice, riducendo i tempi di preparazione in cantiere. La struttura zincata ne garantisce la durabilità anche in condizioni climatiche avverse.
Si consiglia di effettuare una verifica periodica dello stato del parapetto e della zincatura per garantire prestazioni ottimali nel tempo. Accessori complementari possono essere forniti su richiesta.
Parapetto provvisorio per tetti in legno (frontale 90°): parapetto di classe B secondo UNI EN 13374/04 certificato ISPESL – Istituto Superiore Prevenzione e Sicurezza sul Lavoro di Roma n° DTS-XI/01/03/SPB del 03/10/2003 con estensione di omologazione.
Realizzato e certificato per essere utilizzato come sostegno di protezioni provvisorie contro le cadute durante i lavori di riparazione e montaggio su cantieri; permette di lavorare su coperture con travi in legno (pendenze non superiori ai 30° rispetto all’orizzontale) di edifici civili ed industriali in completa sicurezza.
Peso: 10 Kg circa
Stato: zincatura
Apertura morsetto: 80 – 210 mm
